Proyecto Flores SUR

Proyecto Flores SUR

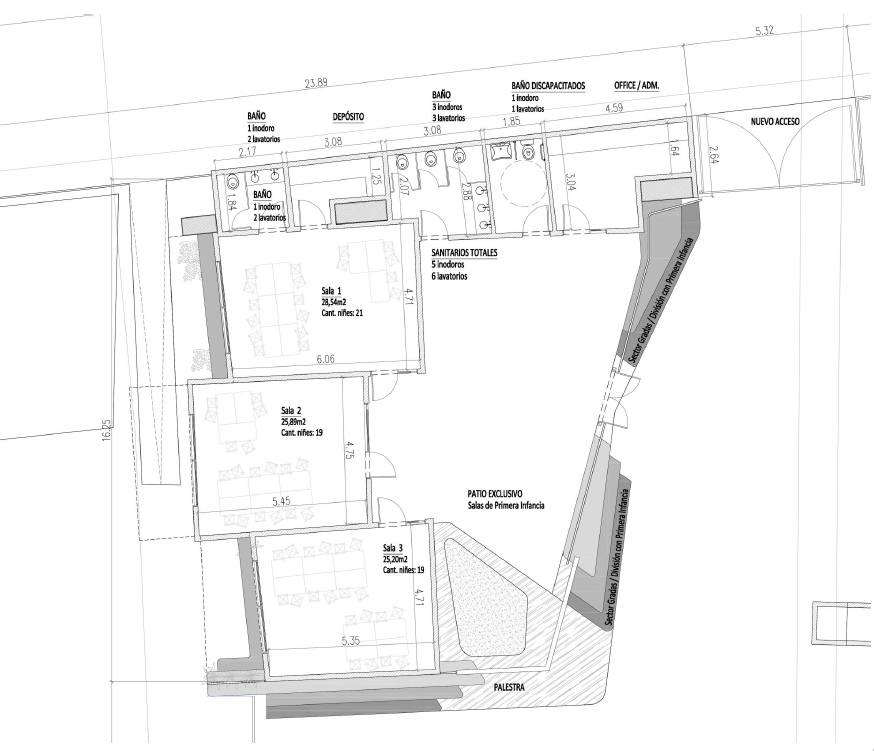
Proyecto de Espacio Cultural y Espacios de Primera Infancia dentro de Club Flores Sur, Ciudad de Buenos Aires.
En colaboración con Arq. Graciela Elsztein
Año: 2020